![]()
ホームページへはこちらへ
http://www.nuriken.jp/![]()
おはようございます![]()
今朝もとっても寒いですね![]()
![]()
ようやく冬がやってきた感じがします![]()
事務所内では、あったか靴下が手放せません![]()
今日の大阪は少しくもり空ですが
今日も元気いっぱい現場スタッフ頑張っております![]()
事務所の倉庫で進めていた作業が無事終わり完成しました![]()


今日これを現場に持って行きます![]()
![]()
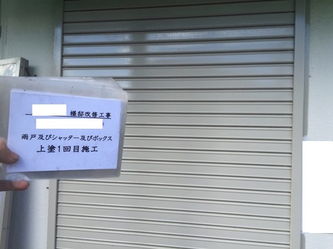
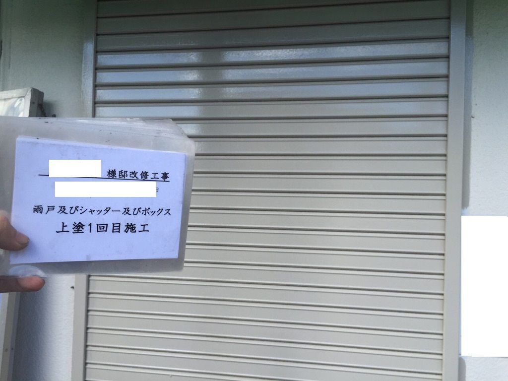
大阪府大東市 店舗シャッター及びBOX塗装 施工前
下塗り
上塗り1回目
上塗2回目
完成 施工後
エキシポ系錆止め+ウレタン塗装2回塗り
本日の現場![]()
・大阪府高槻市
・大阪府箕面市
・大阪府大東市
・大阪府大阪市
・奈良県橿原市
・奈良県奈良市![]()
ホームページへはこちらへ
http://www.nuriken.jp/![]()
コメント